Abattoir Katanga

plan
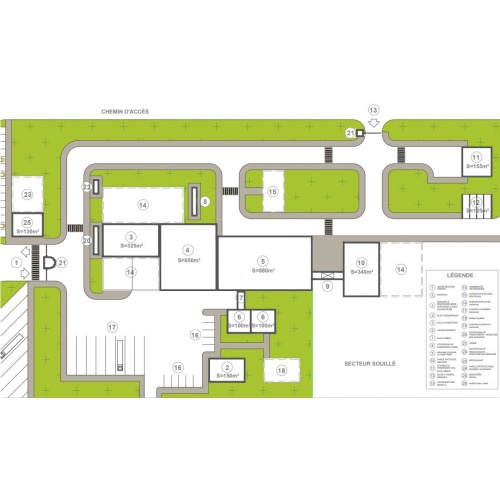
Réalisation d'une étude de faisabilité pour la construction d'un abattoir au Katanga: analyse générale, visite au Katanga, à Lubumbashi et au ranch de Biano pour rédiger l'étude de faisabilité avec une esquisse du projet. Egalement: visite de différents sites pouvant convenir pour la const ...Lees meer



Etude de faisabilité pour la construction d'un abattoir au Katanga (R.D.C.)

Projectblad

Owner : EGMF

Architect :

Plaats van uitvoering : Katanga (R.D.C.)

Hoeveelheid werk :

Stand van zaken : Terminé

Datum van ontvangst : 17/05/2018

Type markt : Privé

  • Beschrijving
  • Specificaties

Réalisation d'une étude de faisabilité pour la construction d'un abattoir au Katanga: analyse générale, visite au Katanga, à Lubumbashi et au ranch de Biano pour rédiger l'étude de faisabilité avec une esquisse du projet. Egalement: visite de différents sites pouvant convenir pour la construction.

Etudes de la construction, du process et du rendement financier.