Wan - Gosselies

Wan-Gosselies-1122x862
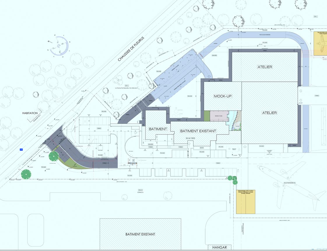
Modification of the main access and completion of the perimeter fencing; increase parking capacity and construction of a connecting road; new pavements and roadways around the building.



Landscaping of surrounding area

PRODUCT_DATASHEET

MAITREDOUVRAGE : WAN

ARCHITECTE :

LIEUDEXECUTION : Gosselies (Belgique)

MONTANTDESTRAVAUX : 365.000 €

ETATDAVENCEMENT : Completed

DATEDERECEPTION :

TYPEDEMARCHE : Public

  • Description
  • Specifications
Modification of the main access and completion of the perimeter fencing; increase parking capacity and construction of a connecting road; new pavements and roadways around the building.